© Biomasse-Heizsysteme-Schaffner  |  Impressum
Martin Schaffner Westheim 22 91589 Aurach Tel.: 09804 / 9159440 Fax: 09804 / 9159441 info@bhs-schaffner.de
Warmwasserbereitung

„Regumaq XZ-30“ Station für die hygienische Trinkwassererwärmung

Anwendungsbereich:

Die Oventrop Armaturengruppe „Regumaq XZ-30“ ermöglicht

die hygienische Trinkwassererwärmung nach dem

Durchflussprinzip.

Vorteile:

hygienisch einwandfreie Trinkwassererwärmung nach

dem Durchflussprinzip

hohe Funktionssicherheit

alle Armaturen aus einer Hand

hochwertige Werkstoffe

Dauerbelastung maximal 120 °C

serienmäßige Isolierung aus EPP

zeitsparender Einbau

leistungsstarke mikroprozessorgesteuerte Regelung mit

einfachster Menüführung über multifunktionales

Kombidisplay

Zirkulationspumpe in Station integriert

Der Anschluss des „Regumaq XZ-30” erfolgt an den Speicherkreislauf DN 25 und

den Trinkwasserkreislauf DN 25 1“-flachdichtend (Anschlusssets sind separat zu

bestellen). Komplett vormontierte und auf Dichtheit geprüfte Einheit mit

Zirkulationspumpe, Montagevorrichtung für die Wandbefestigung, passgenauer

Isolierung und elektronischem Regler.

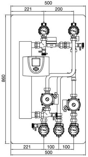
Maße:

 

 

Rohrabstand zwischen

den Anschlüssen

 

100 mm

Dauerbetriebstemperatur

 

max. 120 °C

Breite

 

500 mm

Höhe

 

860 mm

Tiefe

 

260 mm

Achsabstand – Wand (Primär)

 

132 mm

Achsabstand – Wand (Sekundär)

 82 mm

Materialien:

 

 

Armaturen

 

Messing / entzinkungsbeständiges Messing

Dichtungen

 

EPDM / AFREE 400

Isolierung

 

EPP

Schwerkraftbremsen

PPS / Messing / entzinkungsbeständiges Messing

Rohre

 

Edelstahl 1.4401

Wärmeübertrager

 

Edelstahl 1.4401 / Lot Kupfer

Der Pufferspeicher ist in den Heizkreislauf eingebunden und wird von einer eigenständig geregelten Wärmequelle mit Wärme versorgt. Das Regelungssystem des „Regumaq XZ-30“regelt ausschließlich die Trinkwassererwärmung über die drehzahlgeregelte Primärpumpe und die Zirkulationsfunktionen. Über die integrierte Bedieneinheit können die gesamten Funktionen gesteuert und die laufenden Betriebsdaten abgerufen werden.
Funktionsbeschreibung
© Biomasse-Heizsysteme-Schaffner  |  Impressum

Unsere Stärken - Ihr Vorteil:

Fachkompetenz Beratung, flexibel und Vor Ort nahmhafte Hersteller für Spitzentechnologie Ausstellung vor Ort über 25 Jahre Kundendiensterfahrung im Biomasse- und Solarbereich
Martin Schaffner Westheim 22 91589 Aurach Tel.: 09804 / 9159440 info@bhs-schaffner.de
Warmwasserbereitung

Anwendungsbereich:

Die Oventrop Armaturengruppe „Regumaq XZ-30“ ermöglicht

die hygienische Trinkwassererwärmung nach dem

Durchflussprinzip.

Vorteile:

hygienisch einwandfreie Trinkwassererwärmung nach

dem Durchflussprinzip

hohe Funktionssicherheit

alle Armaturen aus einer Hand

hochwertige Werkstoffe

Dauerbelastung maximal 120 °C

serienmäßige Isolierung aus EPP

zeitsparender Einbau

leistungsstarke mikroprozessorgesteuerte Regelung mit

einfachster Menüführung über multifunktionales

Kombidisplay

Zirkulationspumpe in Station integriert

Funktionsbeschreibung
Der Pufferspeicher ist in den Heizkreislauf eingebunden und wird von einer eigenständig geregelten Wärmequelle mit Wärme versorgt. Das Regelungssystem des „Regumaq XZ-30“regelt ausschließlich die Trinkwassererwärmung über die drehzahlgeregelte Primärpumpe und die Zirkulationsfunktionen. Über die integrierte Bedieneinheit können die gesamten Funktionen gesteuert und die laufenden Betriebsdaten abgerufen werden.